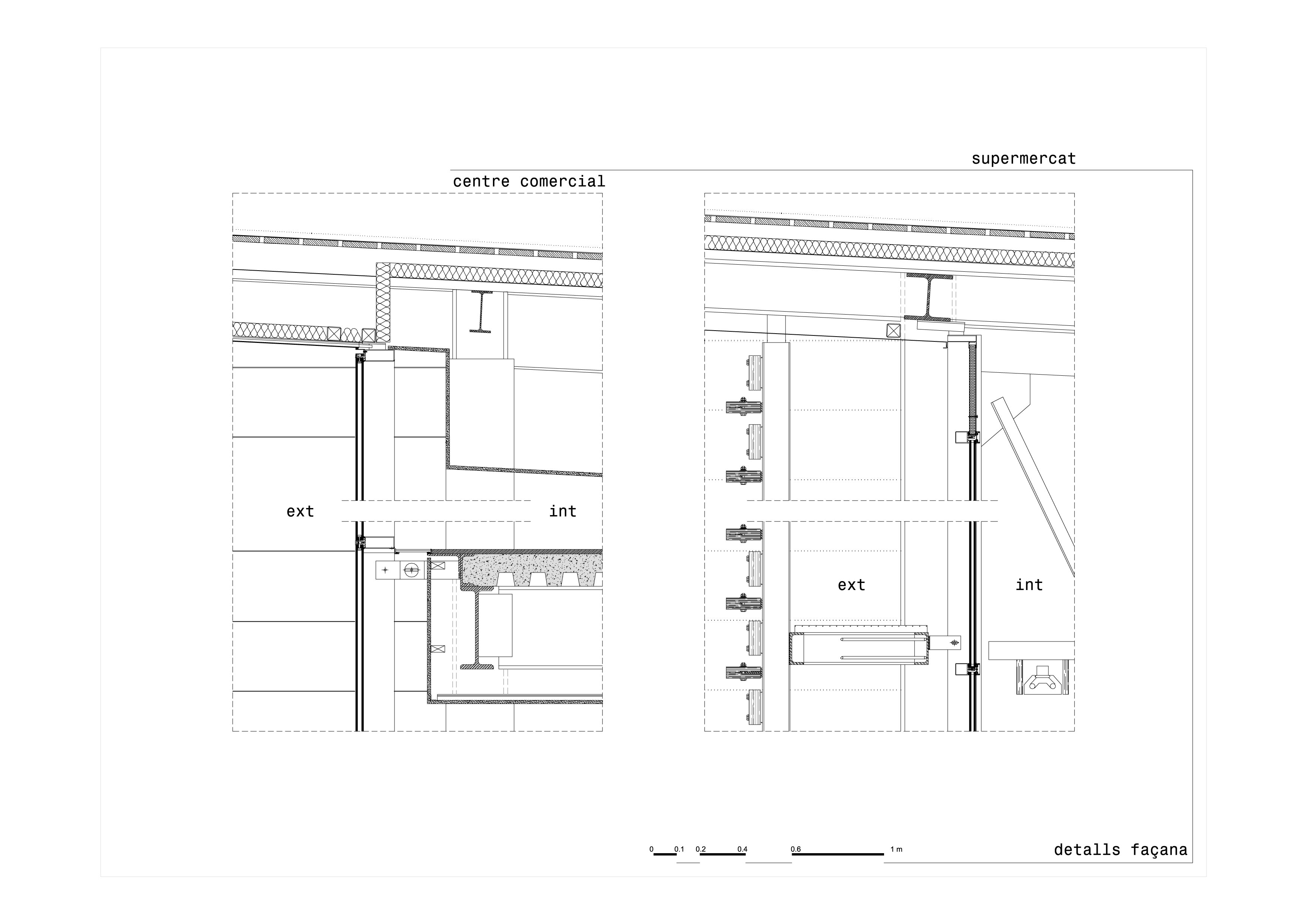
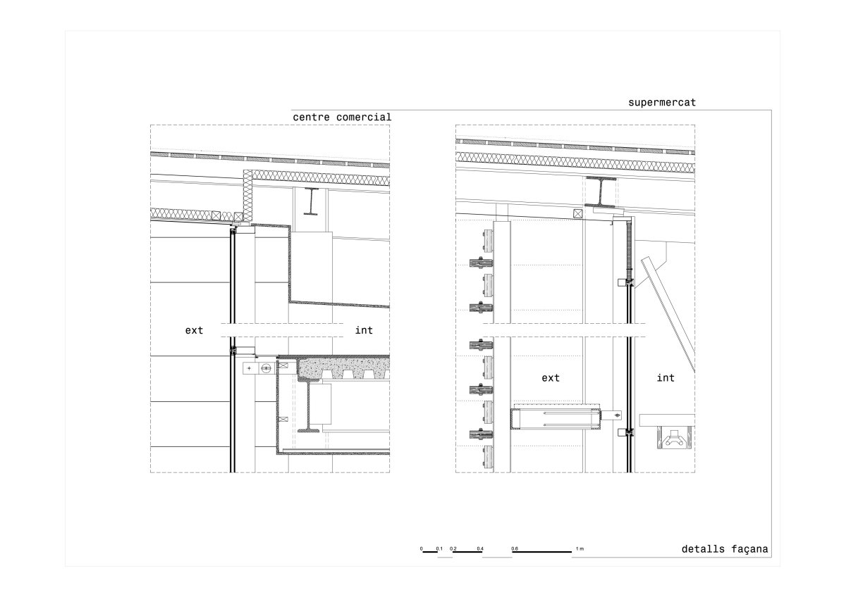
(14)9_detalls_20-Model Published 25 febrer 2014 at 3508 × 2479 in CENTRE COMERCIAL “BOYA” ← Anteriors Següent →