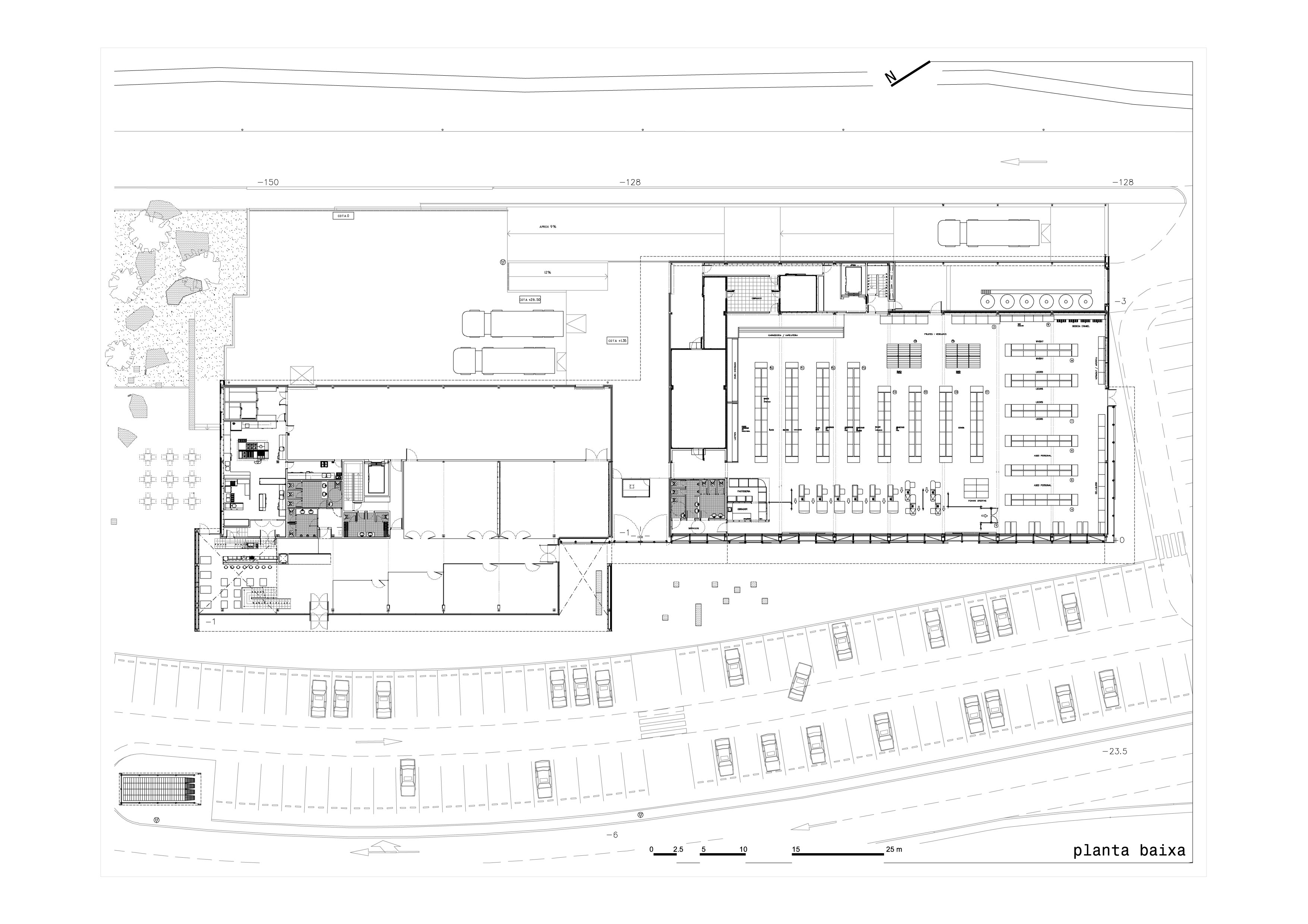
(14)3_planta-baixa_500-Mode Published 25 febrer 2014 at 3508 × 2479 in CENTRE COMERCIAL “BOYA” ← Anteriors Següent →